Matthews Logo

Navigation Menu

1932-1946 S Taylor Road, Cleveland Heights, OH, 44118

Taylor Tudor Plaza
Contact Broker

Key Information

Type
Retail

1 Space Available

Space name
Space Available
Rental rate
Contact Broker
Space available
11,239

Highlights

  • Historic Redevelopment: Three architecturally significant 1920s Tudor-Revival buildings are being preserved and revitalized as part of a larger district transformation.
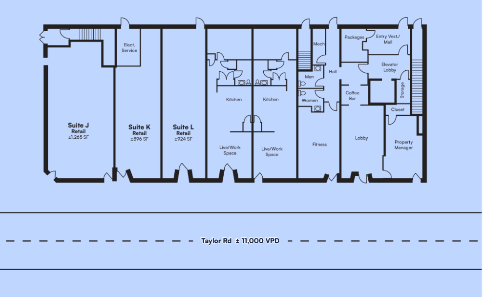
  • Mixed-Use Community: The project introduces 44 apartments, 8 live/work spaces, and ±11,239 SF of street-level retail, anchoring the commercial corridor.
  • Walkable Location: Situated adjacent to Cain Park, a major cultural destination attracting over 50,000 visitors annually.
  • Active Revitalization: Part of the Cain Park Village initiative, combining public and private investment for sustained economic growth.
  • Flexible Retail Spaces: Retail units range from approximately 595 SF to 1,337 SF, accommodating a variety of tenant needs.
  • Completion Timeline: Construction is underway with an estimated completion date of Summer 2026.
  • Strong Demographics: Surrounded by established neighborhoods with average household incomes exceeding $80,000 within a 3-mile radius.
  • Regional Connectivity: Prominent visibility along South Taylor Road and enhanced pedestrian and cyclist accessibility.
  • Cultural Hub: Proximity to Cain Park and ongoing city investments reinforce the area as a year-round activity center.

Photos

Location

Agents

Broker of Record

Matt Wallace

License # REC.2022007141, BRKP.2024002419 (OH)
Matthews Real Estate Investment Services, Inc
950 Main Ave., Suite 510, Cleveland, OH 44113