Matthews Logo

Navigation Menu

2360 Michael Faraday Dr, San Diego, CA, 92154

2360 Michael Faraday Dr
$1.70 Psf Gross

Key Information

Tot. SF
19,957
Year Built
1992
Type
Industrial

1 Space Available

Space name
Space Available
Rental rate
$1.70 Psf Gross
Space available
15,180
Space Use
industrial

Highlights

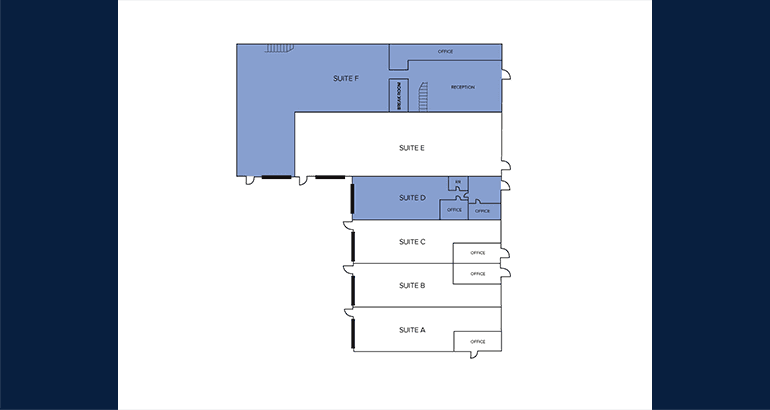
  • This opportunity is to lease ±1,735 SF (Suite D) ±8,000 SF (Suite F) of industrial space across multiple suites, built in 1992 with clear span construction and 21’ clear height throughout.
  • The site offers a 1.25/1,000 SF parking ratio and 200 amps of power per suite, ideal for light manufacturing, distribution, or storage operations.
  • Strategically located in Otay Mesa providing easy access to the US/ Mexico Border, CA-905, I-805, and I-5.
  • Identified as APN 646-160-17-00, this offering presents a flexible leasing option for users seeking functional warehouse or flex space.

Photos

Location

Agents

Broker of Record

David Harrington

License # 02168060 (CA)
Matthews Real Estate Investment Services, Inc.
2321 Rosecrans Ave., Suite 1225, El Segundo, CA 90245